The Beverly Quận 9
Manhattan Quận 9
Grand World Phú Quốc
Lancaster Legacy
The Global City
Masteri Centre Point
The Beverly solari

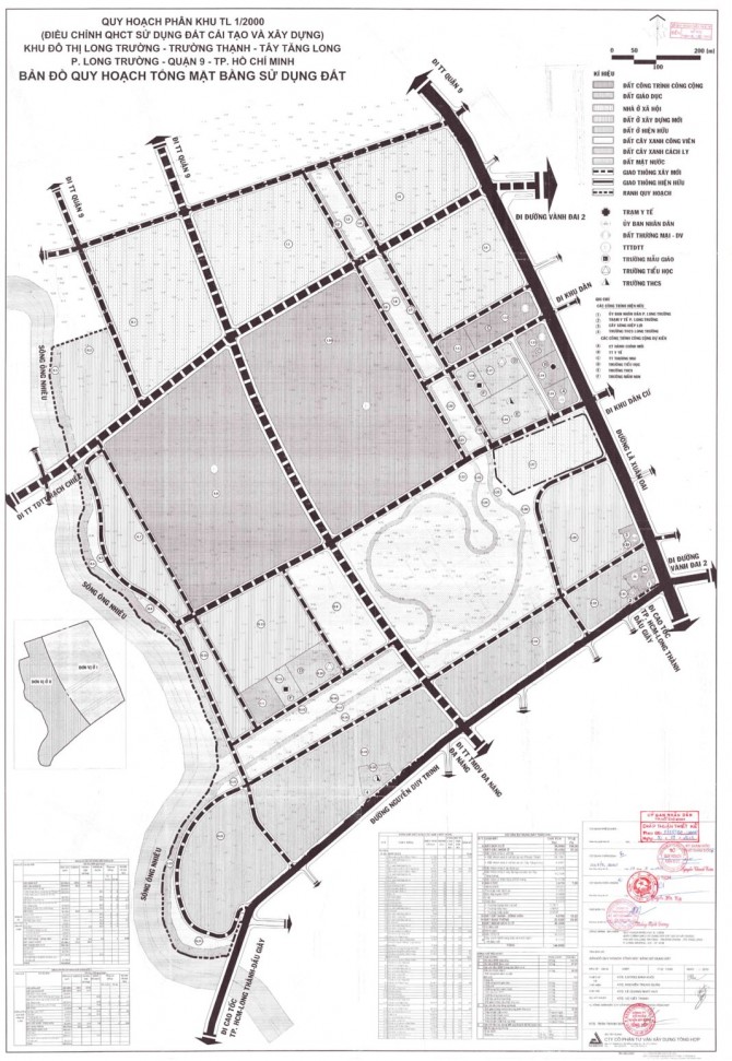
ĐẦU TƯ DỰ ÁN ĐÔNG TĂNG LONG QUẬN 9  KHÁCH HÀNG ĐƯỢC LỢI GÌ

Ngày đăng: 25/02/2020

1. GIÁ BÁN

Hiện tại giá bán dự án Đông Tăng Long chỉ bằng 1/2 so với các dự án trong vòng bán kính 3km.

  Đông Tăng Long Verosa Vinhomes Grand Park
Quy Mô 160ha   280ha
Vị trí Đường Liên Phường đi qua dự án. Nằm Trên đường Liên Phường Nằm trên đường liên phường
Giá bán 5,5-5,7 tỷ/căn 100m2 10-12 tỷ/căn 100m2 11-13 tỷ/căn 100m2

Nhà phố Đông Tăng Long sở hữu nhiều tiềm năng tăng giá vượt trội

Điểm đầu tiên cần nói đến là vị trí - vị trí và vị trí

Đông Tăng Long sở hữu Vị trí chiến lược liền kề dự án Tây Tăng Long Của Vingroup (tìm hiểu thêm tại đây)

Khi dự án Tây Tăng long của vingroup triển khai và đường Liên Phường (lộ Giới 60m) hoàn thành thì giá bán dự án Đông Tăng Long Sẽ lên rất cao, mang đến nhiều lợi ích cho khách hàng khi quyết định đầu tư vào thời điểm bây giờ tăng gấp đôi thậm chí gấp 3 lần hiện nay.

2. QUY HOẠCH

Đông Tăng Long là dự án có quy hoạch đồng bộ và lớn bậc nhất quận 9 thời điểm chưa có dự án  Vinhomes Grand Park của Vingroup triển khai

Với nhiều điểm nhấn đặc biệt như:

+ Hồ cảnh quan đến 7ha được xem là biểu tượng phong thủy cho sự sinh sôi nảy nở của dự án, hồ đối lưu với sông lớn.

+ Các Block chưng cư đã được giao đất cho các chủ đầu tư lớn như: Hưng Thịnh, Đất Xanh, Thăng Long Home, Vinatecco và đang được triển khai với mức giá bán từ 28-30tr/m2/căn hộ.

+ Hệ thống trường học liên cấp từ mẫu giáo đến THPT được quy hoạch trong dự án, Trung tâm thương mại và TT y tế đều được xây dựng

+ Giao thông: hiện tại các tuyến đường quanh dự án đều được mở rộng và phát triển, cùng với từng phân khu của dự án đều đang được xây dựng. Đầu tư Đông Tăng Long Khách hàng sẽ sở hữu được một Bất Động Sản Giá Trị Gia Tăng Từng Ngày.

3. THANH TOÁN LINH HOẠT

Khách hàng mua được thanh toán thành 6 đợt trong 9 tháng.

Ngân hàng hỗ trợ cho vay 60% giá trị hỗ trợ lãi suất 0% trong 9 tháng

ĐĂNG KÝ THAM QUAN VÀ CẢM NHẬN DỰ ÁN

HOTLINE: 0914341830 - 0903183989

 

Dự án - Lọc danh sách
Tìm kiếm

DỰ ÁN MỚI

Nhà phố Classia Khang Điền

The Classia là dự án nhà phố liền kề, biệt thự được quy hoạch trên diện tích 4,3 ha nằm tại…

The Privia Khang Điền

Căn hộ cao cấp tại 158 An Dương Vương, quận Bình Tân. Do Khang Điền làm chủ đầu tư với pháp…

The Emerald 68

Căn hộ The Emerald 68 thuộc phường Vĩnh Phú, Tp.Thuận An, Tỉnh Bình Dương

Lumiere Riverside Q2

LUMIÈRE riverside là dự án căn hộ cao cấp tiếp theo tại Quận 2 do Masteri Homes phát triển. Dự án…

Lancaster Legacy Quận 1

Căn hộ cao cấp 230 Nguyễn Trãi Quận 1, Tp.HCM, Lancaster Legacy tiếp nối dòng chảy tinh hoa. CĐT: Tập…

The 9 Stellars

The 9 Stellars - một sản phẩm mới đến từ nhà phát triển bất động sản chuyên nghiệp…

BÀI VIÊT MỚI

Căn hộ studio The Privia - Khang Điền: Chỉ 2 tỷ đồng/căn (chưa VAT), lựa chọn tối ưu cho người Việt trẻ

(ĐTCK) Đây là phiên bản độc đáo, gồm 40 căn trong tổng số 100 căn tháp A với tầm nhìn (view) đẹp, được giới thiệu trong giỏ hàng đợt 2 của Tập đoàn Khang Điền, sau khi đã bán hơn 850 căn trong đợt mở bán đầu tiên.

29-12-2023

Lãi suất tiền gửi thấp nhất là bao nhiêu?

Lãi suất tiền gửi tại quầy kỳ hạn 1 tháng của một ngân hàng lớn xuống còn 2,4%/năm - mức thấp nhất tính theo kỳ hạn tháng.

12-12-2023

Căn hộ The Privia - Khang Điền hướng đến nhu cầu ở thực

Với mức giá công bố dự kiến từ 48 triệu đồng/m2 (tim tường, chưa VAT), The Privia của Tập đoàn Khang Điền tại quận Bình Tân đang thu hút người mua có nhu cầu ở thực, trở thành tâm điểm bất động sản (BĐS) TP.HCM những ngày qua với thiết kế hiện đại, chính sách bán hàng hấp dẫn.

14-11-2023

Loạt tín hiệu khởi sắc cho bất động sản khu Đông TP.HCM

Với sự cộng hưởng từ hệ thống hạ tầng giao thông đồng bộ hiện có và những đại dự án đang hoàn thiện, thị trường bất động sản khu đông TP.HCM nắm giữ tiềm năng lớn để phát triển và gia tăng giá trị mạnh mẽ.

13-11-2023

3 lý do sở hữu căn hộ The Privia – Khang Điền

The Privia sở hữu nhiều ưu điểm vượt trội: vị trí thuận lợi, pháp lý vững chắc, tiến độ đảm bảo… với giá dự kiến chỉ từ 48 triệu đồng/m2 cùng chính sách hấp dẫn, giúp cho ước mơ "sở hữu nhà Sài Gòn" cho người có nhu cầu mua ở thực trở nên dễ dàng hơn.

10-11-2023

Lancaster Legacy vị trí độc tôn, giá trị trường tồn

Người ta có thể thay đổi kiến trúc, nâng cấp chất lượng căn hộ, duy chỉ có vị trí là yếu tố bất biến không thể thay đổi.

28-03-2022

TRANG THÔNG TIN DỰ ÁN BẤT ĐỘNG SẢN HỒ CHÍ MINH

Địa Chỉ : Số 166 Trần Não, P. Bình An Quận 2, Hồ Chí Minh

Hotline : 0903183989 -  0914341830

Email   : phuckhangland114@gmail.com

Tư vấn khách hàng: 0914341830

Bản quyền 2026 thuộc về bk.phuckhangland.net