Ngày đăng: 25/02/2020
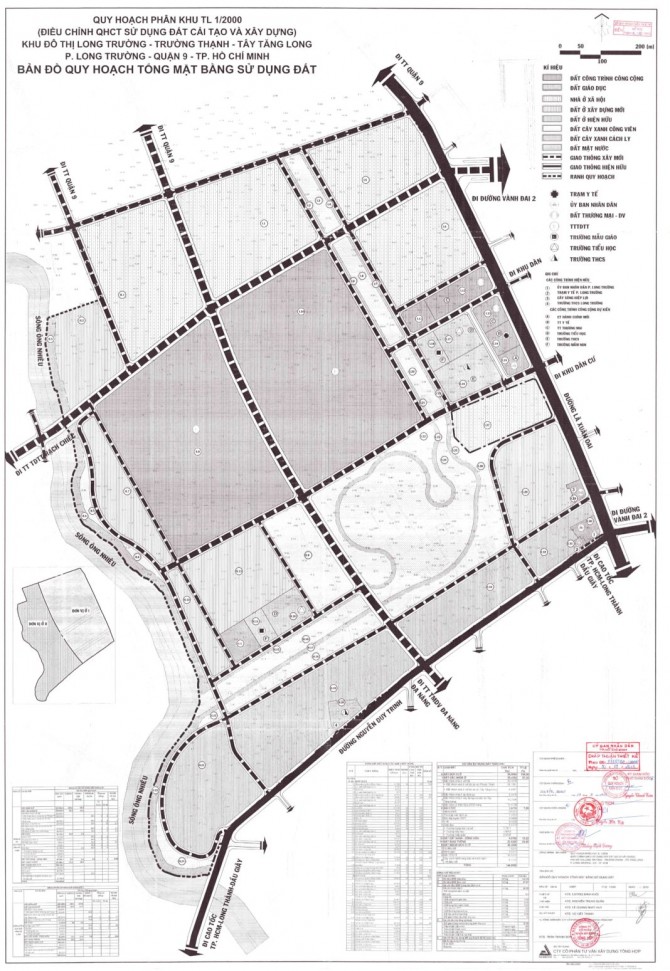
Theo nhiệm vụ quy hoạch, Khu đô thị Long Trường - Trường Thạnh - Tây Tăng Long có diện tích 144,889 ha và có tính chất là khu dân cư đô thị, dịch vụ công cộng và công viên cây xanh.
Khu vực quy hoạch ưu tiên bố trí các công trình cao tầng dọc trục giao thông chính có động lực phát triển như: đường Lã Xuân Oai, đường Nguyễn Duy Trinh.
Khu vực tiếp giáp sông Ông Nhiêu và rạch Phước Tấn,... cần phát huy ưu thế địa hình sông nước, tạo không gian mở hài hòa với cảnh quan chung tại khu vực; phát triển mô hình nhà vườn thấp tầng với mật độ xây dựng thấp, các công trình cao tầng được bố trí lùi dần phía sau theo nguyên tắc cao dần về phía bên trong so với sông, kênh, rạch.
Dọc tuyến sông Ông Nhiêu và rạch Phước Tấn cần nghiên cứu đề xuất các tuyến đường giao thông ven sông, kênh, rạch có kết nối với mạng lưới giao thông toàn khu, phù hợp với cảnh quan bờ sông, kênh, rạch.
Khu đô thị Long Trường - Trường Thạnh - Tây Tăng Long có phía Đông Bắc giáp đường Lã Xuân Oai, phía Đông Nam giáp đường Nguyễn Duy Trinh; phía Tây Nam giáp sông Ông Nhiêu và phía Tây Bắc giáp khu trung tâm và dân cư quận.

The Classia là dự án nhà phố liền kề, biệt thự được quy hoạch trên diện tích 4,3 ha nằm tại…
Căn hộ cao cấp tại 158 An Dương Vương, quận Bình Tân. Do Khang Điền làm chủ đầu tư với pháp…
Căn hộ The Emerald 68 thuộc phường Vĩnh Phú, Tp.Thuận An, Tỉnh Bình Dương
LUMIÈRE riverside là dự án căn hộ cao cấp tiếp theo tại Quận 2 do Masteri Homes phát triển. Dự án…
Căn hộ cao cấp 230 Nguyễn Trãi Quận 1, Tp.HCM, Lancaster Legacy tiếp nối dòng chảy tinh hoa. CĐT: Tập…
The 9 Stellars - một sản phẩm mới đến từ nhà phát triển bất động sản chuyên nghiệp…
(ĐTCK) Đây là phiên bản độc đáo, gồm 40 căn trong tổng số 100 căn tháp A với tầm nhìn (view) đẹp, được giới thiệu trong giỏ hàng đợt 2 của Tập đoàn Khang Điền, sau khi đã bán hơn 850 căn trong đợt mở bán đầu tiên.
29-12-2023
Lãi suất tiền gửi tại quầy kỳ hạn 1 tháng của một ngân hàng lớn xuống còn 2,4%/năm - mức thấp nhất tính theo kỳ hạn tháng.
12-12-2023
Với mức giá công bố dự kiến từ 48 triệu đồng/m2 (tim tường, chưa VAT), The Privia của Tập đoàn Khang Điền tại quận Bình Tân đang thu hút người mua có nhu cầu ở thực, trở thành tâm điểm bất động sản (BĐS) TP.HCM những ngày qua với thiết kế hiện đại, chính sách bán hàng hấp dẫn.
14-11-2023
Với sự cộng hưởng từ hệ thống hạ tầng giao thông đồng bộ hiện có và những đại dự án đang hoàn thiện, thị trường bất động sản khu đông TP.HCM nắm giữ tiềm năng lớn để phát triển và gia tăng giá trị mạnh mẽ.
13-11-2023
The Privia sở hữu nhiều ưu điểm vượt trội: vị trí thuận lợi, pháp lý vững chắc, tiến độ đảm bảo… với giá dự kiến chỉ từ 48 triệu đồng/m2 cùng chính sách hấp dẫn, giúp cho ước mơ "sở hữu nhà Sài Gòn" cho người có nhu cầu mua ở thực trở nên dễ dàng hơn.
10-11-2023
Người ta có thể thay đổi kiến trúc, nâng cấp chất lượng căn hộ, duy chỉ có vị trí là yếu tố bất biến không thể thay đổi.
28-03-2022